Ben Eby

403-540-2993

Re/Max Mountain View

201 - 4600 Crowchild Tr. NW.,
Calgary. AB T3A 2L6

Data was last updated 2026-05-19 at 06:24:14 PDT

Description

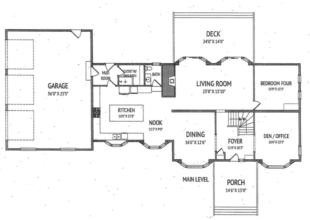
Subdivision is being applied for in the form of three 3.95 acre parcels (M/L) including the existing home. The seller is willing to sell the current property as is or the the existing home with the condition of the subdivision being approved. This is a remarkable renovated executive home currently on 19.87 acres that has been stripped to the studs. Almost everything is new including interior drywall, exterior sheeting, siding, shingles, windows, exterior and interior doors, garage concrete floor, exterior lighting, decks, railings plus a complete new water system and natural gas lines The western mountain view is incredible!! Six bedrooms with large primary bedroom featuring a large walk in closet and luxury ensuite, dream kitchen with huge center island, main floor den, games room, sauna, two fireplaces, glass railings, four bathrooms plus a wash station for the fur babies. Three car garage (3 doors) with epoxy finished floors. The list goes on and on. The property is located mere seconds north of Cochrane city limits and the new 130 acre sports park. Excellent sub division potential for 3 additional lots. According to Rocky View County up to 8 horses are allowed on this property. The is nothing left to do but move in!!

Features

Kennel, Other

Listing Provided By

RE/MAX Realty Professionals

Copyright and Disclaimer

The data relating to real estate on this web site comes in part from the MLS® Reciprocity program of the Calgary Real Estate Board (CREB®). This information is deemed reliable but is not guaranteed accurate by the CREB®.

Property Details


MLS®#
A2233607
Type:
Detached
Style:
2 Storey, Acreage with Residence
Basement:
Finished, Full
Year Built:
1981
Living Area:
2,929 sq.ft.
Lot Size Area:
865,537 sq.ft.
Bedrooms:
6
Bathrooms:
4 full & 1 half
Real Estate Listing
Provided by:
 Real Estate Listing provided by
  • Ben Eby
  • Phone: 403-247-5171
  • Mobile: 403-540-2993
  • Fax: 403-247-5171
  • Re/Max Mountain View
  • 201, 4600 Crowchild Tr. NW.
  • Calgary, AB
  • T3A 2L6